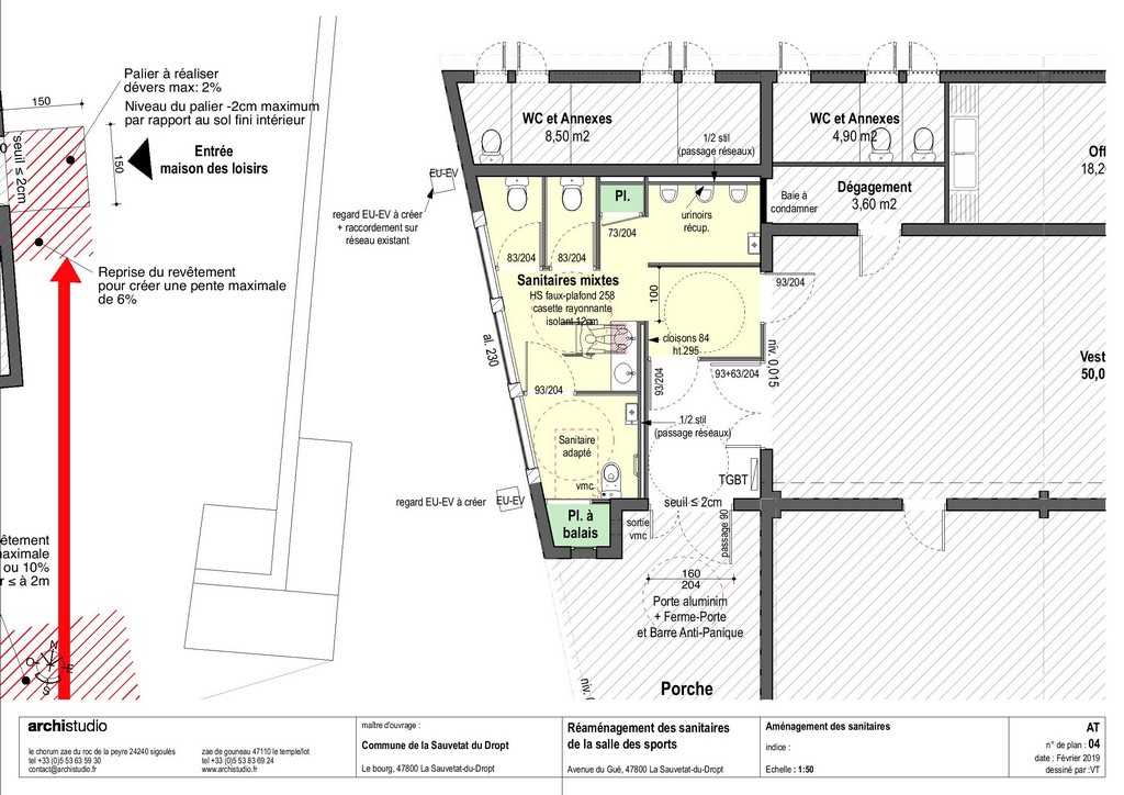
Dans la série des mises aux normes obligatoires des bâtiments communaux de La Sauvetat du Dropt, on trouve le réaménagement des sanitaires de la Salle des Sports. Malgré la crise sanitaire actuelle, les travaux de démolition ont débuté. Réalisés en régie par les employés municipaux selon un protocole par eux établi. Jean-Marc Reclus et Aurélien Jollis se relaient pour ne pas travailler ensemble afin de respecter la mesure imposée de distanciation sociale. Les cloisons et les sanitaires ont été cassés par Jean-Marc, tandis que le travail de déblaiement et de nettoyage a été fait par Aurélien le lendemain.
Les entreprises devant effectuer les travaux devraient être sur le terrain dès le début de ce mois de mai.
![]() |
![]() |
![]() |







